Et nyt boligområde ved Stenskovvej i Stjær indebærer mulighed for bofællesskab.
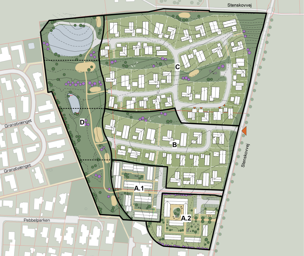
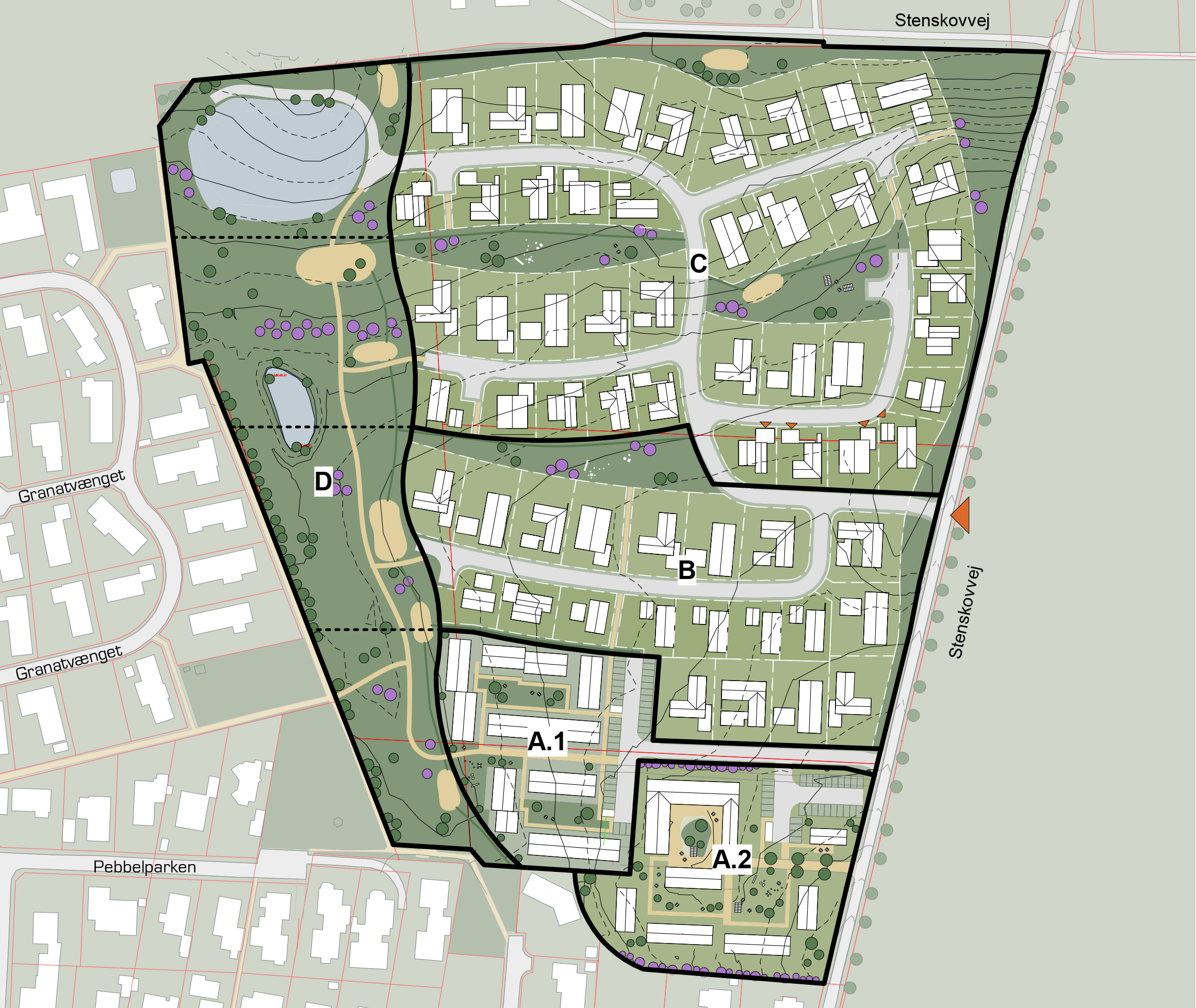
Et nyt boligområde på ca. 12,3 hektar, kaldet ”Syrenbakken”, skal udvikles ved Stenskovvej i den nordøstlige del af Stjær. Det besluttede Økonomi- og Erhvervsudvalget i forrige uge. Lokalplanen (lokalplan 1191) skal nu til behandling i byrådet.
Området ventes at kunne rumme ca. 100 boliger, herunder både parcelhuse, rækkehuse og potentielle bofællesskaber.
Boligområdet vil blive opdelt med grønne kiler og rekreative arealer, der skal supplere et større rekreativt areal mellem den eksisterende del af Stjær og det nye boligområde. Planlægningen kommer desuden til at omfatte stiforbindelser gennem området for at binde området godt sammen med omgivelserne.
Offentlig høring
Forud for arbejdet med lokalplanen har der været en såkaldt forhøring og et borgermøde i august 2021. Efterfølgende er projektet blevet tilpasset.
Forslaget til lokalplanen forventes af blive behandlet af Byrådet i slutningen af 2024, hvorefter forslaget kommer i offentlig høring.
På samme møde i Økonomi- og Erhvervsudvalget blev der indstillet til etablering af nye boligområder i Vrold (lokalplan 1212) samt en ny udstykning i Anebjerg med ny rundkørsel på Frueringvej (lokalplan 1215).
