Klank Svømmehal er klar til at møde politikerne i Skanderborg Kommune med en detaljeret og gennemarbejdet ansøgning.
I 2017 blev foreningen Klank svømmehal dannet med det formål at få en svømmehal i Galten-Skovby.
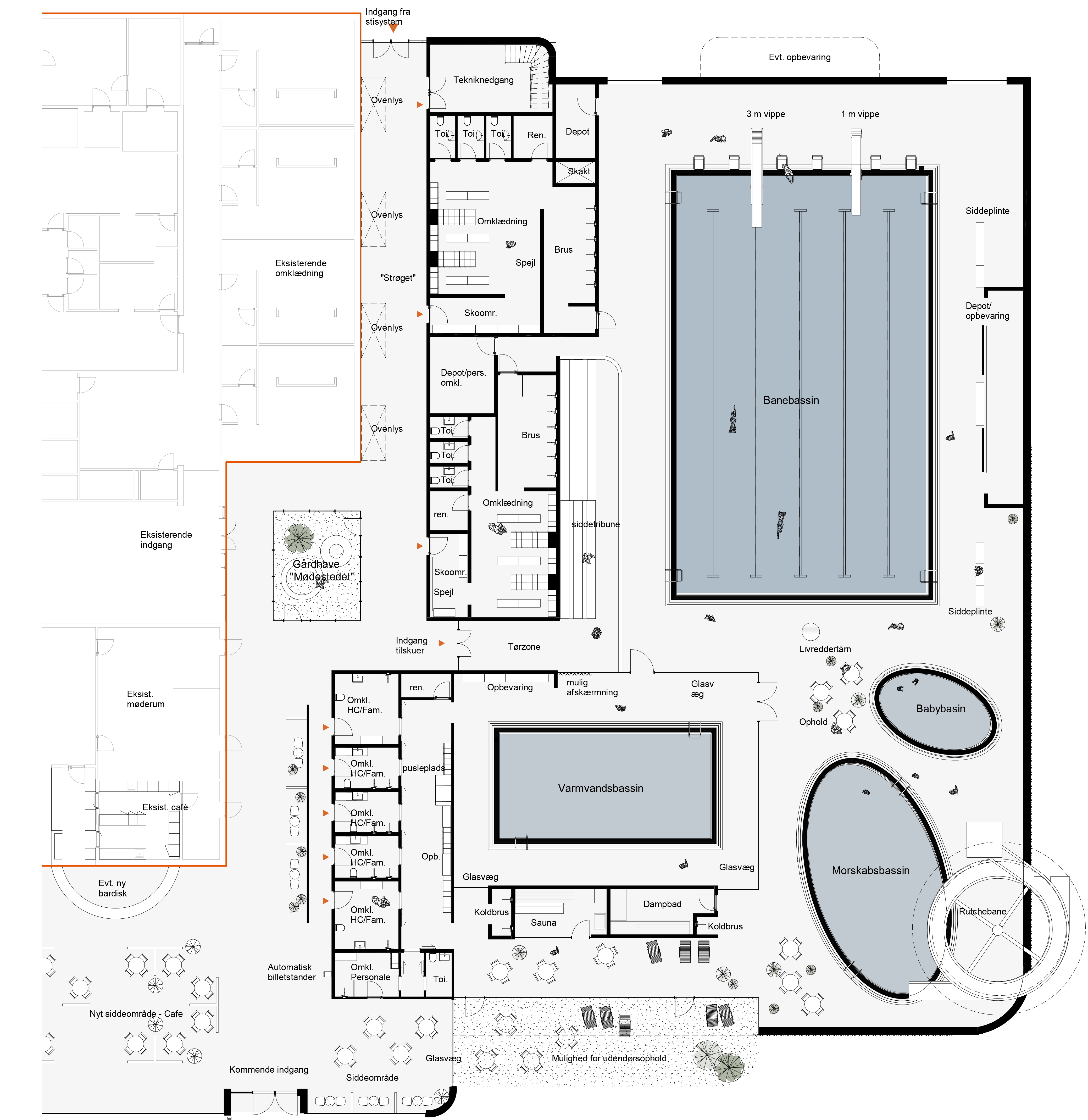
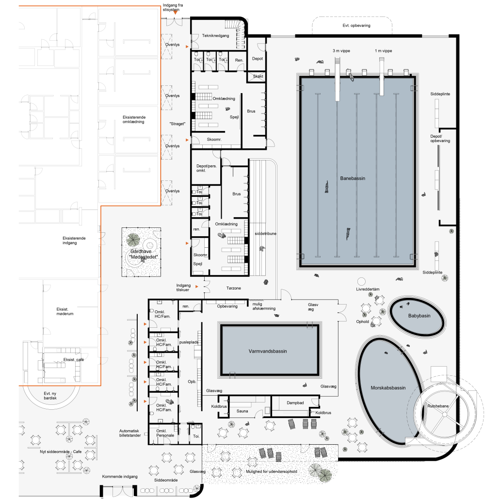
I torsdags havde bestyrelsen inviteret interesserede til en snak om projektet, som det ser ud i dag med nye tegninger og et næsten færdigt projekt.
»Vi præsenterede vores projekt, som det ser ud i dag, og heldigvis var de fremmødte meget begejstrede for det, de fik at se,« fortæller Birgitte Majgaard, der er formand for Klank Svømmehal.
I 2019 udarbejdede Nodo Arkitekter en projektskitse for svømmehalsfaciliteter ud fra borgere og interessenters ønsker.
Efter et strategimøde og en kreativ workshop med deltagere fra ProjektForum Galten-Skovby, erhvervslivet, repræsentanter fra foreninger i Galten FS, Stjær og Herskind, arkitekter, rådgivende ingeniør med 30 års erfaring indenfor svømmehaller, handicapråd med flere arbejdede Nodo Arkitekter hurtigt og fik lavet nye tegninger. Med dem er bemanding, driftsudgifter og brugerbehov optimeret.
»På mødet i torsdags talte vi om, hvordan svømmehallen kan være med til at løfte hele Klank Idrætscenter. Vi vil gerne lave en ny fælles indgang med et område, der indbyder til fællesskab. Et sted, hvor skolebørn har lyst til at hænge ud. Hvor man kan møde nye og gamle venner. Hvor forældre kan sidde og snakke eller arbejde, mens børnene er til sport,« viderebringer Birgitte Majgaard.
Der var også et stort ønske om en velfungerende cafe gerne med mulighed for at købe familiens aftensmad med hjem. Det har man indtil videre ikke haft så gode erfaringer med her i området, men svømmehalsforeningen vil gerne samarbejde med Galten FS om det. De håber, at mange flere brugere kan være med til at give større muligheder for cafeen. Måske ved at se på, hvordan de gør det, de steder, hvor det faktisk fungerer.
Bestyrelsen har tidligere taget imod gode råd fra fysioterapeuter og en kørestolsbruger med flere. Men til dette møde var det lokale døgn- og aflastningstilbud for børn og unge, Skovbo også inviteret.
»Vi vil gerne gøre svømmehallen så handicapvenlig som mulig med gennemtænkte løsninger fra begyndelsen. Derfor er vi rigtig glade for, at Skovbo tog imod invitationen og sendte to medarbejdere, der kunne komme med input til, hvad deres børn har brug for. Vi kan jo godt have nogle ideer til, hvad de har af behov og ønsker, men det er dem, der ved det,« forklarer Birgitte Majgaard.
Ansøgning til byrådet afleveres senest 28. marts
Efterfølgende blev der holdt generalforsamling. Så nu ...
