Image
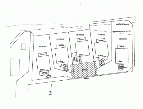
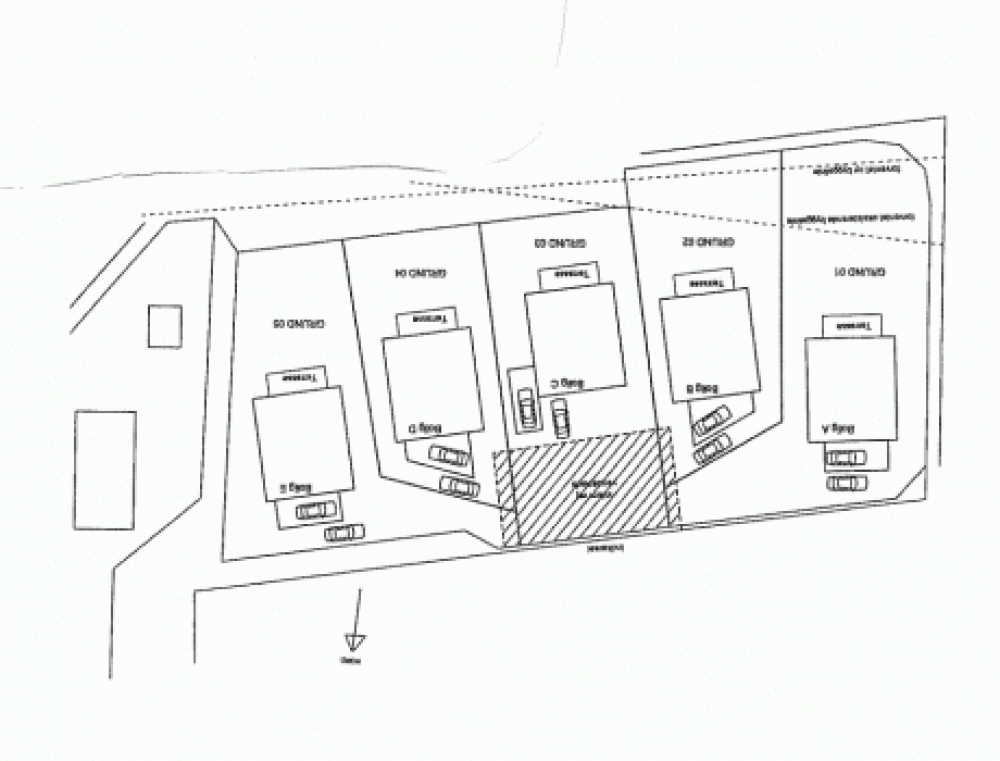
Fem fritliggende boliger opføres på grunden, hvor den nu nedlagte Skovby Børnehave ligger. Byggeriet går i gang til foråret.
SennenBolig, som holder til i Kolding, har netop fået grønt lys fra Skanderborg Kommune til at gå i gang med realiseringen af et byggeprojekt på Hørslevvej 5 i Skovby.
»I sidste uge fik vi den endelige godkendelse fra kommunen, så nu kan vi komme i gang med byggeriet,« fortæller Bent Graungaard, direktør i SennenBolig A/S.
Inden selve byggeriet kan gå i gang, venter der dog et større arbejde med at nedrive den nuværende bygning, der tidligere har huset Skovby Børnehave. Selve grunden er på 3000 kvadratmeter.
Nedrives i oktober
Bent Graungaard fortæller, at der er planer om at bygge fem fritliggende privatboliger på mellem 100 og 140 kvadratmeter på grunden. Hver bolig vil få sin egen selvstændige, lille grund, og der vil være tilhørende carport og skur til alle boligerne.
»Det bliver boliger, der er beregnet til Hr. og Fru Danmark, og stilen minder lidt om det, vi er ved at bygge på H.C. Ørsteds Allé« siger han.
Nedrivningen af den tidligere børnehave går i gang i oktober, og byggeriet af de nye boliger går i gang til foråret.
Del på
SennenBolig, som holder til i Kolding, har netop fået grønt lys fra Skanderborg Kommune til at gå i gang med realiseringen af et byggeprojekt på Hørslevvej 5 i Skovby.
»I sidste uge fik vi den endelige godkendelse fra kommunen, så nu kan vi komme i gang med byggeriet,« fortæller Bent Graungaard, direktør i SennenBolig A/S.
Inden selve byggeriet kan gå i gang, venter der dog et større arbejde med at nedrive den nuværende bygning, der tidligere har huset Skovby Børnehave. Selve grunden er på 3000 kvadratmeter.
Nedrives i oktober
Bent Graungaard fortæller, at der er planer om at bygge fem fritliggende privatboliger på mellem 100 og 140 kvadratmeter på grunden. Hver bolig vil få sin egen selvstændige, lille grund, og der vil være tilhørende carport og skur til alle boligerne.
»Det bliver boliger, der er beregnet til Hr. og Fru Danmark, og stilen minder lidt om det, vi er ved at bygge på H.C. Ørsteds Allé« siger han.
Nedrivningen af den tidligere børnehave går i gang i oktober, og byggeriet af de nye boliger går i gang til foråret.
